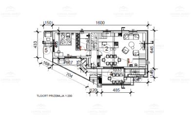
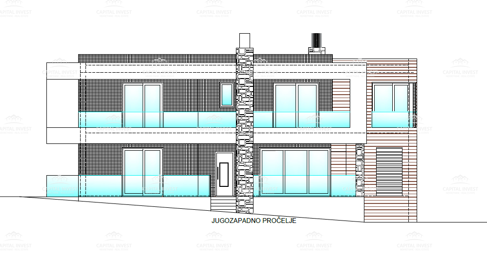
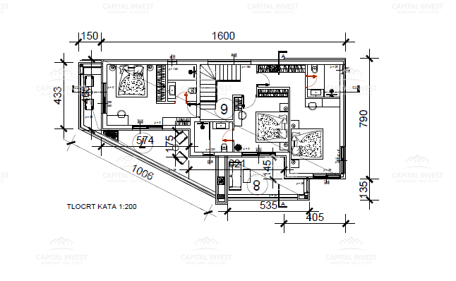
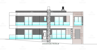
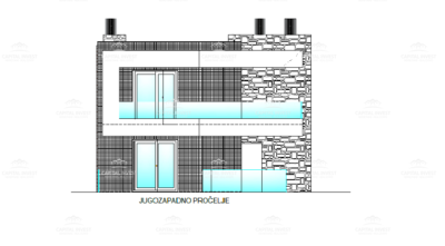
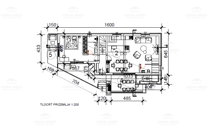
Prodajemo građevinsko zemljište površine 507 m2 smješteno u Krnici nudi izvrsnu priliku za ulaganje ili ostvarenje vlastitih projekata. Parcela je definirana kao građevinsko zemljište i napravljen je glavni arhitektonski projekt. Prema projektu planirana je obiteljska kuća koja se sastoji od podruma, prizemlja i kata. U podrumu je planiran skladišni prostor. Stan je izveden kao dvoetažni gdje je u prizemlju dnevni boravak s kuhinjom i blagovaonom, soba, kupaona, toalet i natkrivena teras. Stan je povezan unutarnjim stubištem, na katu se nalaze tri spavaće sobe sa kupaonama, te natkrivene terase. Ukupna bruto površina iznosi 226m2, tlocrtno 137m2.
Nalazi se na atraktivnoj lokaciji u Krnici, pogodnoj za različite namjene zahvaljujući svojoj poziciji unutar naselja. Površina zemljišta omogućuje raznovrsne mogućnosti planiranja i realizacije građevinskih zahvata prema individualnim potrebama investitora.
S obzirom na lokaciju zemljišta u Krnici, prednost predstavlja dostupnost lokalnih sadržaja te mogućnost brzog pristupa širem području.
Vlasništvo 1/1. Tereta nema.
Za dodatne informacije i razgledavanje, pozivamo Vas da istražite mogućnosti koje ovo zemljište pruža.
