0 - 10,000,000 0 - 10,000,000
0 - 20
Više opcija
Opis Nekretnine

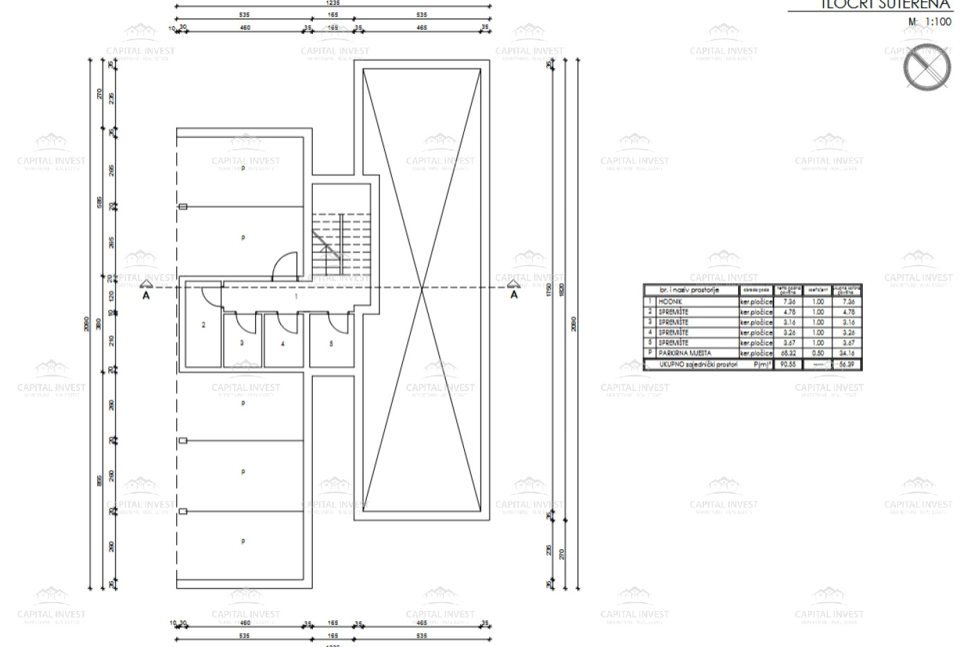
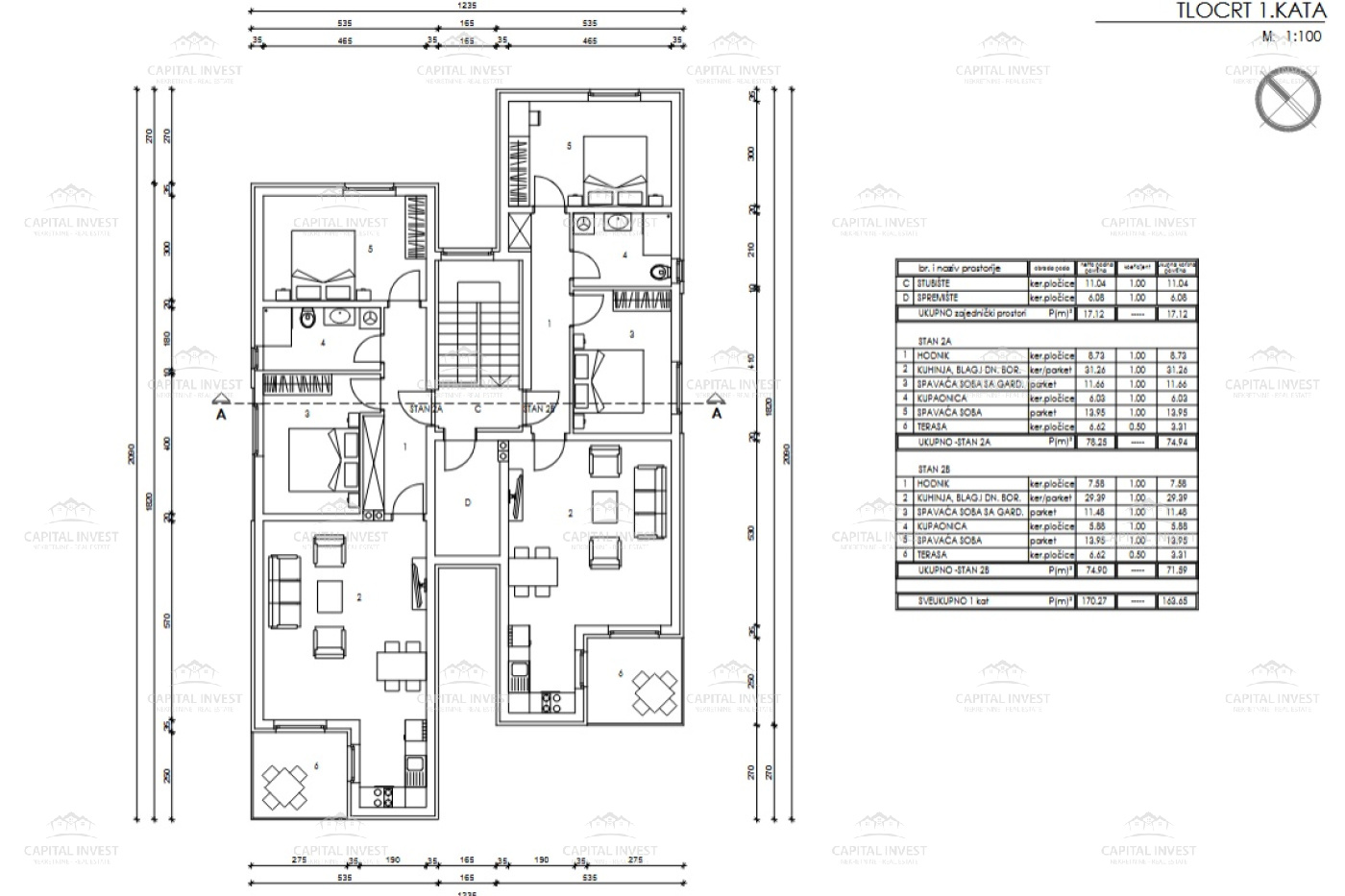
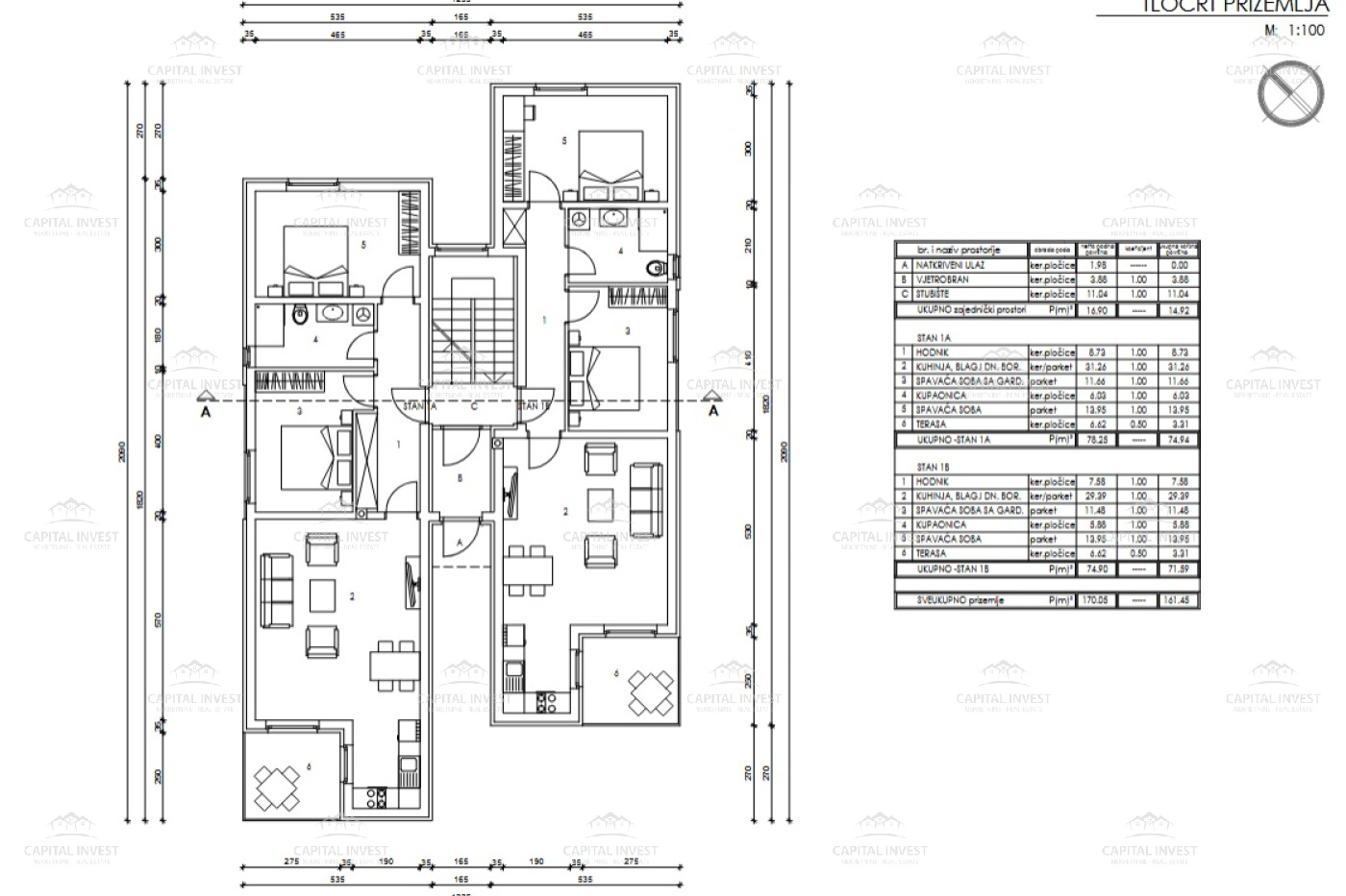
Prodaje se građevinsko zemljište s izrađenim projektom i pravomoćnom građevinskom dozvolom za izgradnju moderne stambene zgrade koja se sastoji od četiri stambene jedinice u naselju Vinkuran – dvije u prizemlju i dvije na prvom katu. Prema projektu, dva su stana površine 74,59 m², a druga dva 71,54 m². Svaki stan obuhvaća dvije spavaće sobe, kuhinju s blagovaonicom, dnevni boravak i kupaonicu, a svakom pripada i spremište te natkriveno parkirno mjesto. Projekt je osmišljen tako da kombinira funkcionalnost, udobnost i suvremen dizajn, uz maksimalno iskorištavanje prostora i optimalnu orijentaciju stambenih jedinica. Ova nekretnina predstavlja izvrsnu investicijsku priliku za gradnju stambene zgrade namijenjene obiteljskom stanovanju ili turističkom najmu.

Pozivamo vas da razmotrite ovu priliku te istražite mogućnosti koje ovo zemljište može pružiti za vaše investicijske planove. Za više informacija i dogovor oko razgledavanja, obratite nam se s povjerenjem.

Lokacija
Hrvatska
Istarska županija
Medulin
Vinkuran
52203
Kvart
500 m
500 m
200 m
100 m
300 m
8,000 m

Zemljište , pravomoćna građevinska dozvola, Vinkuran, Istra

Medulin, Istarska županija, Hrvatska

950 m²
Pregleda: 321
€ 250.000
Detalji
ID : 1038
Tip Nekretnine : Građevinsko zemljište
Tip Oglasa : Prodaja
Cijena : € 250.000
Površina : 950 m²
Informacije o agentu
Kontaktiraj Agenta

Tvrtka Capital invest d.o.o. vodi računa o svojim kupcima i njihovom mišljenju te im se trudi osigurati maksimalno točne informacije i sadržaje oglasa kao što je cijena, opis nekretnine i slično. Unatoč pažljivom obraćanju pažnje prilikom unosa podataka zadržavamo pravo na pogreške u tehničkom opisu i tekstualnom sadržaju, a ukoliko dođe do istih biti će ispravljeni u najkraćem mogućem roku.

Podaci o tvrtki

  • Capital invest d.o.o.
  • Gladijatorska 17
  • Pula, Istra, Hrvatska
  • OIB: 16510293500

Kontakt podaci

Radno vrijeme

  • ponedjeljak - petak   8 - 17
  • subota   8 - 13

Ostali termini po dogovoru