Your new home in Istria
Property Description
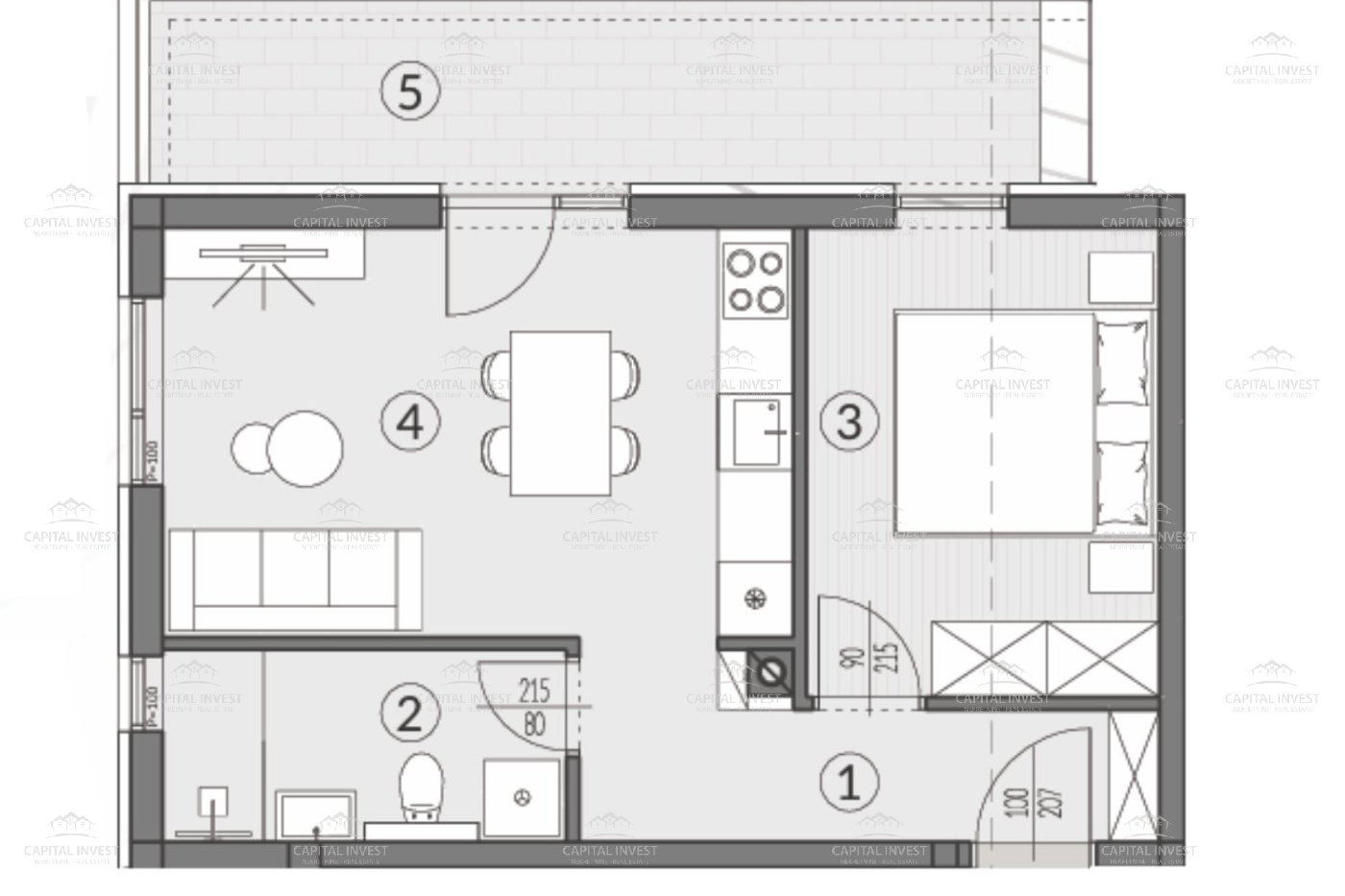
We are selling a newly built apartment measuring 53.07m2 on the ground floor of a residential building. The apartment consists of an entrance area, a living room with kitchen and dining area, one bedroom, a garden, a covered terrace, and a bathroom. The apartment also includes a parking space in the building’s courtyard. There are several other apartments for sale in the same building. Ownership is clear 1/1, with no encumbrances. More information at: capitalinvest.hr
Features
Prizemlje
: Air conditioning
: PVC
: Under construction
Address Map
Croatia
Istria
Pula
Šikići
Neighborhood
4 km
4 km
1,500 m
700 m
500 m
7 km
Apartment with garden, new building, Šikići, Pula, Istria
Pula, Istria, Croatia
1 Bathrooms
53.07 m²
Visits: 552
€ 161.000
Basic Details
ID : 410
Property Type : Apartment
Listing Type : For Sale
Price : € 161.000
Agency commission : 2% + PDV
Surface area : 53.07 m²
Rooms : 2
Bathrooms : 1
Agent info
Contact Agent
Company info
- Capital invest d.o.o.
- Gladijatorska 17
- Pula, Istra, Hrvatska
- OIB: 16510293500
Contact
- Mob: +385 98 202 300
- Office - Mletačka 12, Pula
- Phone: +385 52 757 991
- Mail: info@capitalinvest.hr
Working hours
- Monday - Friday 8 am - 5 pm
- Saturday 8 am - 1 pm

